Feature Articles Memo Calendar Memo Pad Business Memo's Loaves & Fishes Home
Fun, Fun, Fun at the 2002 Gateway Fun-O-Rama
Parkrose Community
Fair at hit
Jane Baker, Hazelwood & East Portland leader,
dies at 69
Parkrose Loses Long-
time Resident
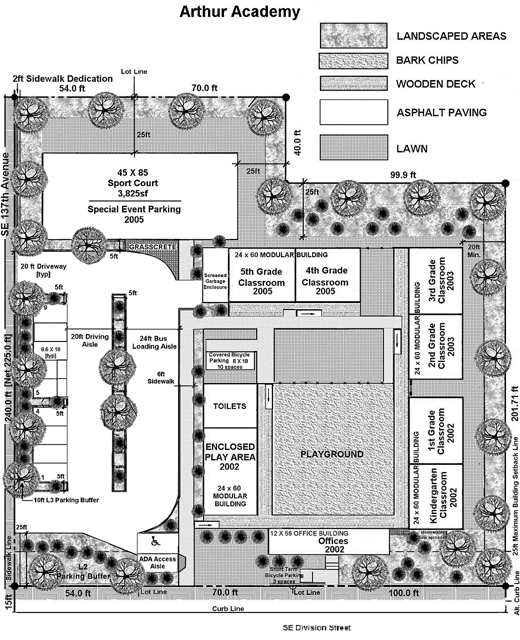
There's a new school on
the block
Data shows less poor,
more rich, more singles
in Gateway

About the MEMO
MEMO Archives
MEMO Advertising
MEMO Web Neighbors
MEMO Staff

© 2002, Mid-county MEMO
Schematic of Arthur Academy
Memo Calendar | Memo Pad | Business Memo's | Loaves & Fishes | About the MEMO
MEMO Advertising | MEMO Archives | MEMO Web Neighbors | MEMO Staff | Home